■ ARCHITEKTONICKÉ A URBANISTICKÉ STUDIE
■ NÁVRHY, PROJEKTY A PASPORTY STAVEB
■ DOTACE (ZELENÁ ÚSPORÁM, OPRAV DŮM PO BABIČCE ATD.)
■ PŘESNÉ ZAMĚŘOVÁNÍ STÁVAJÍCÍHO STAVU STAVEB A POZEMKŮ
■ INŽENÝRSKÁ ČINNOST (ZAJIŠTĚNÍ POVOLENÍ STAVBY)

OBYTNÉ SOUBORY

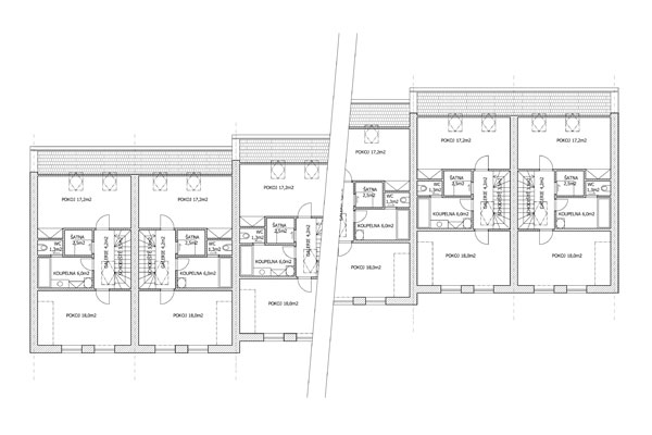
Víceúčelové řadové domy, Milovice (2008)

  • 2008-2010 územní rozhodnutí a stavebního povolení
  • 2010-2012 realizace a uvedení stavby do provozu

Soubor rodinných domů v Nymburce na Hrachovině (2008)

5 řadových domů v Lysé nad Labem (2007)

  • 2008 stavební povolení
  • 2008-2010 realizace a uvedení stavby do provozu

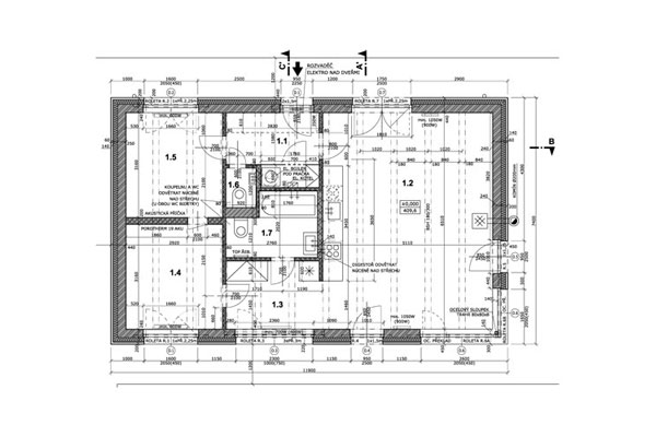
12 řadových domů v Milovicích (2005)

  • 2006 stavební povolení
  • 2006-2008 realizace a uvedení stavby do provozu

REKONSTRUKCE HISTORICKÝCH OBJEKTŮ

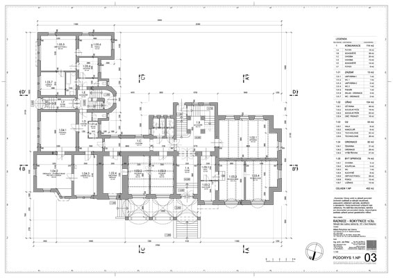
Rekonstrukce secesní radnice v Rokytnici nad Jizerou (2008)

  • 2009 zpracování výkresů stávajícího stavu stavby
  • 2009-2010 rešerše historických částí dokumentace a jiných archivních podkladů a návrh stavby

Rekonstrukce zámku v Kounicích (2004)

  • 2004-2007 postupné zaměření a zpracování dokumentace jednotlivých částí stávajícího stavu stavby
  • 2008 rešerše historických částí dokumentace a jiných archivních podkladů a návrh stavby

TECHNICKÉ STAVBY

Víceúčelový technický objekt, Rašovice (2010)

  • adaptace bývalého teletníku
  • 2010 návrh stavby, stavební povolení

Výrobna pelet, Noviny pod Ralskem (2005)

  • adaptace bývalého zemědělského areálu
  • 2005 zaměření a zpracování dokumentace jednotlivých částí stávajícího stavu stavby
  • 2006 návrh stavby a projekt pro územní řízení

Adaptace stávajících ocelových hal, Praha-Řeporyje (2004)

  • 2004 zaměření pozemku a staveb na něm
  • návrh logistického areálu, architektonické a stavebně-technické řešení jednotlivých objektů
  • 2005-2006 realizace stavby

RODINNÉ DOMY

Rodinný dům “U Vlečky”, Nymburk (2007)

  • 2008-2010 stavební povolení a realizace stavby

Nízkorozpočtový rodinný dům v Radosticích (2006)

  • 2007 příprava podkladů pro kladné stanovisko CHKO

Obytný dům u rodinné farmy v Radosticích u Vchynice (2006)

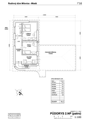
Rodinný dům v Milovicích (2015)

  • 2016 projekt pro stavební povolení

Víkendový rodinný dům v Prostřední Lhotě (2016)

  • 2015-2016 stavební povolení
  • 2016-2017 realizace a uvedení stavby do provozu

URBANISMUS A ÚZEMNÍ PLÁNOVÁNÍ

Revitalizace přednádražního prostoru, Poříčany (2010)

  • analýza problémů a majetkoprávních vztahů, celkový návrh řešení území, ideové řešení jednotlivých staveb (zastřešení terminálů apod.), řešení dopravy, parteru, zeleně, mobiliář aj.

Návrh urbanistické koncepce zástavby obytné zóny (2010)

  • přípravná fáze projektu: analýza území, návrh struktur zástavby, kapacitní údaje (velikosti pozemků, šířky ulic, rozsah a proporce veřejných prostor apod.), schéma dopravního řešení, orientační rozpočet investičních nákladů dopravní a technické infrastruktury atd.

Revitalizace přednádražního prostoru, Velký Osek (2009)

  • analýza problémů a majetkoprávních vztahů, celkový návrh řešení území, ideové řešení jednotlivých staveb (lávky pro pěší, zastřešení terminálu apod.), řešení dopravy, parteru, zeleně, mobiliář aj.

Greenway Mrlina (2010)

Labská stezka, úsek Kolín-Čelákovice (2006)

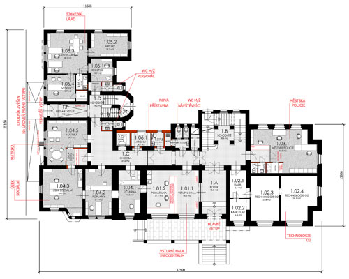
STAVEBNÍ ÚPRAVY, PŘÍSTAVBY

Aula Základní školy Letců R.A.F. v Nymburce (2011)

Rekonstrukce roubenné chalupy na Trutnovsku (2009)

  • 2009-2011 realizace stavby

Stavební úpravy rodinného domu ve Všechlapech (2009)

  • studie 2009
  • 2009 stavební povolení
  • 2010 realizace stavby

Rodinný dům na Kostelním náměstí v Nymburce (2008)

  • 2010 stavební povolení
  • 2011 zahájení realizace stavby

Regenerace fasád bytového panelového domu, Lovosice (2008)

Přístavba garáže a zimní zahrady k rodinnému domu v Chrášťanech (2005)

  • 2006 stavební povolení
  • 2006-2008 realizace stavby

Nástavba pizzerie na obchodní dům z 80. let, Praha-Roztyly (2005)

Kavárna, Poděbrady (2005)

  • návrh provozního řešení interiéru

Vestavba bytu v patře víceúčelového objektu ve Vrchlabí (2005)

  • návrh stavby, projekt pro stavební povolení, spolupráce při realizaci stavby

Rodinný dům ze staré stodoly, Rašovice (2006)

  • 2008 stavební povolení

ZAMĚŘOVÁNÍ STÁVAJÍCÍHO STAVU STAVEB A POZEMKŮ, PASPORTY STAVEB

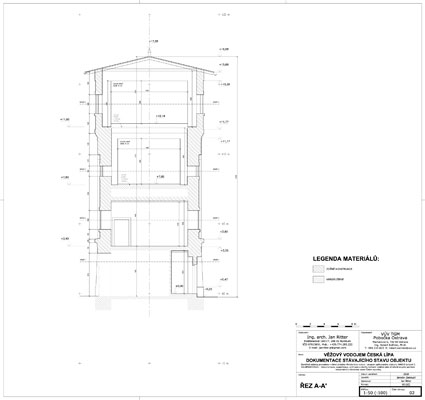
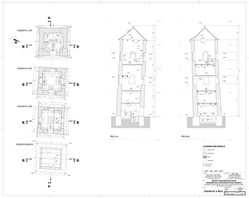
Historické stavby (2004-2009)

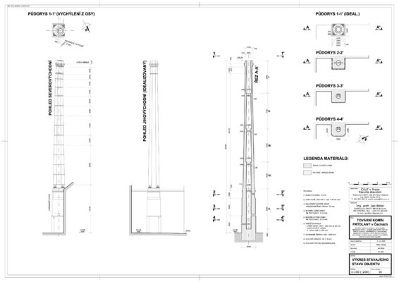
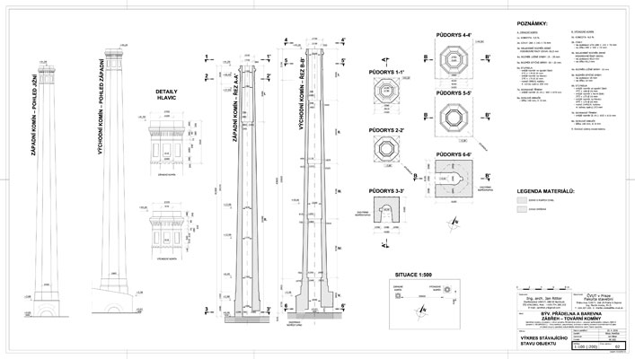
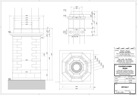
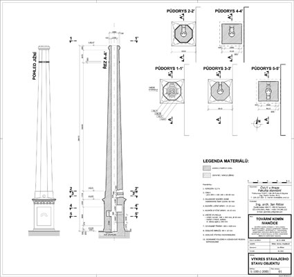
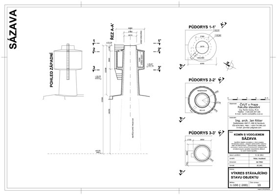
Tovární komíny (2012-2019)

Vodohospodářské stavby (2018-2019)

Technické konstrukce (2018-2019)